服务热线
400 8010 113
当前位置 : 首页 > 产品中心 > 静音型系列-通风机
● 精选宝钢耐指纹钢板:优质钢材,美观耐用。
● 外置接线盒:维护方便,更省心。
● 知名品牌电机:寿命长,动力强劲,静音效果好。
● 微正压送风:快速将室内污浊气体通过门窗缝隙排出室外。
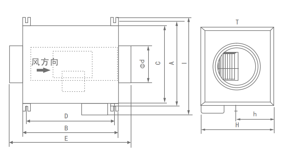
| 型号 | A | B | C | D | E | H | h | I | Φd |
| JSF-10/J1002 | 286 | 340 | 240 | 298 | 444 | 203 | 100 | 325 | 98 |
| JSF-18/J1802 | 286 | 340 | 240 | 298 | 444 | 203 | 100 | 325 | 98 |
| JSF-37 | 290 | 340 | 240 | 298 | 520 | 242 | 125 | 325 | 142 |
| JSF-50 | 319 | 385 | 273 | 349 | 566 | 280 | 135 | 360 | 142 |
| JSF-77 | 330 | 430 | 284 | 395 | 620 | 310 | 136 | 375 | 196 |

型号 | 电压 | 额定功率(W) | 风量(m³/h) | 最大静压 | 噪音dB(A) | 包装尺寸 | 重量 | |||
高 | 低 | 高 | 低 | 高 | 低 | |||||
JSF-10/J1002 | 220 | 15 | - | 100 | - | 90 | 24 | - | 538x380x240 | 5.2 |
JSF-18/J1802 | 220 | 22 | - | 180 | - | 110 | 26 | - | 538x380x240 | 5.2 |
JSF-37 | 220 | 38 | 32 | 370 | 300 | 130 | 27 | 25 | 610x380x270 | 6.5 |
JSF-50 | 220 | 74 | 50 | 500 | 400 | 185 | 29 | 26 | 670x420x315 | 9.3 |
JSF-77 | 220 | 140 | 87 | 770 | 620 | 180 | 35 | 32 | 680x450x380 | 9.1 |
扫描二维码添加企业微信